【岐阜県郡上市高鷲町大鷲】 2階建階建 R8年夏リフォーム 駐車場造成 完了予定 標高 約1,000m オーナー専用鷲ヶ岳スキー場駐車場約800m
| 所在 | 岐阜県郡上市高鷲町大鷲 |
| 権利形態 | 所有権(公簿) |
| 面積 | 419㎡(126.74坪) |
| 地目 | 山林 |
| 接地面道路 | 南西接面7m/管理道路 |
| 備考 | 公簿面積による売買です |
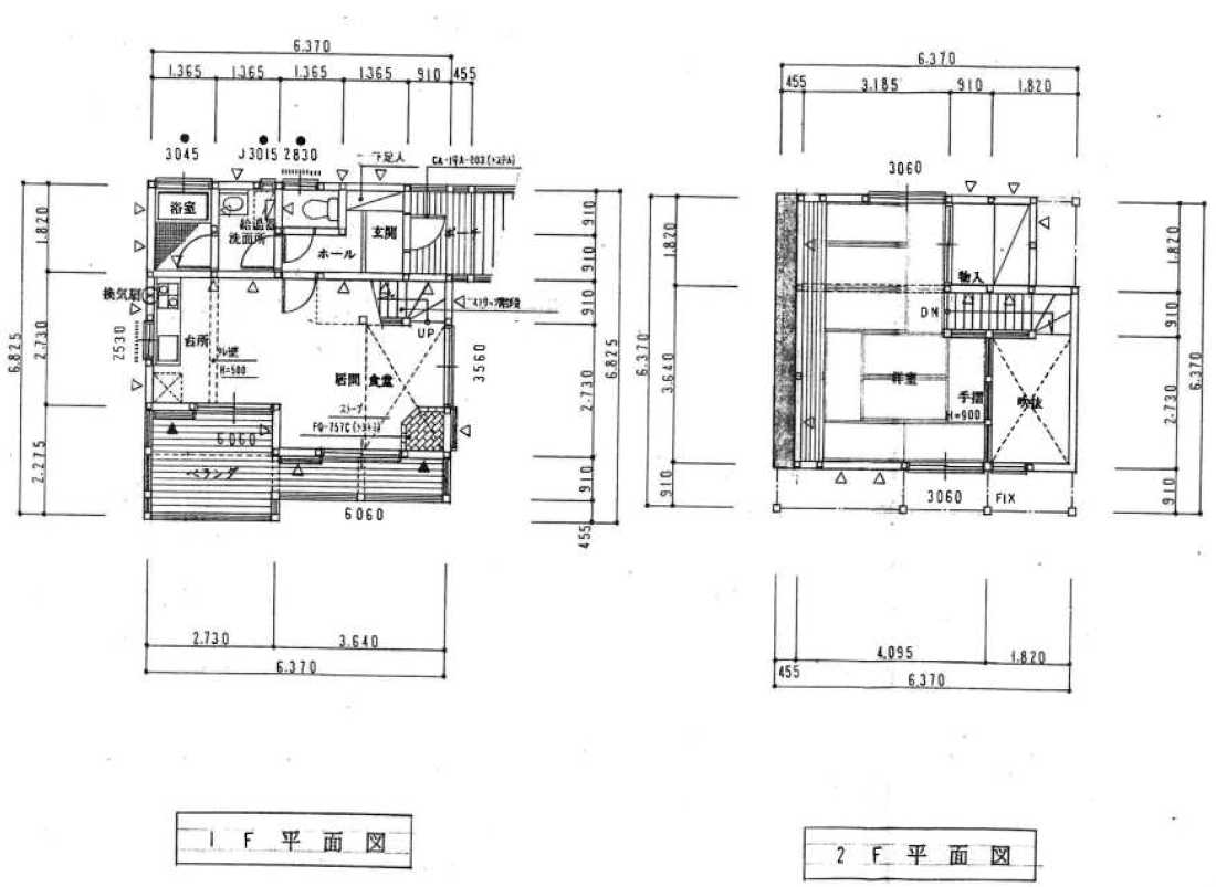
| 延床面積 | 53.81㎡(16.27坪) |
| 容積率 | 400% |
| 建ぺい率 | 70% |
| 都市f計画法 | 都市計画区域外 |
| 用途地域 | 用途地域の指定なし |
| 他法規制 | 他別荘管理規約に準ずる |
| 施設 | 管理事務所 |
| 電気 | 中部電力 |
| ガス | LPガス個別方式 |
| 水道 | 専用水道=私用 |
| 汚水 | 汲み取り |
| 取引態様 | 売主 |
| 現況 | 空家 |
| 引渡 | 相談 |
| 管理費等(年間) | 87,120円(税込み) |
| 契約印紙代(購入時1回) | 5,000円 |
| (土地)所有権移転登記費用 | 約90,000円(税込み) |
| 備考 | 別途固定資産税等は引渡日を起算に精算 |






















